Zavrtnjska veza je razdvojivi mašinski spoj koji se ostvaruje pomoću navoja – spiralne brazde izvedene na cilindričnoj ili koničnoj površini.
Slika 1. Zavrtanj sa maticom i dve podloške
Navoj omogućava:
pretvaranje obrtanja u pomeranje (linearno ili osno)
stvaranje pritiska između spojenih delova
lako montiranje i demontiranje spoja
Prednosti zavrtnjskih veza:
jednostavna montaža i demontaža
moguća višekratna upotreba
prenos velikih sila
mogućnost podešavanja sile stezanja
Nedostaci:
veća masa u odnosu na neke druge spojeve
sklonost otpuštanju pod vibracijama (potreba za osiguranjem)
koncentracija naprezanja u korenu navoja
Zavrtanj (vijak) – cilindrično ili konično telo sa spoljnim navojem, glavom i vratom
Matica – element sa unutrašnjim navojem
Podloška – pločica koja raspoređuje pritisak glave zavrtnja ili matice na veću površinu i sprečava oštećenje spojne površine
Spojeni delovi – konstrukcijski elementi koje zavrtanj povezuje
Slika 2. Vrste navojnih spojeva
Navojni spoj može biti: Nepokretan (čvrst) i Pokretan.
Nepokretni (čvrsti) navojni spojevi su oni koji se ne obrću pod opterećenjem, a pokretni su oni koji se pak obrću pod opterećenjem.
Ako je navoj izrađen neposredno na delovima koji se spajaju (cevi, ventili itd.), onda je to neposredni čvrst navojni spoj, a ako je izrađen na posebnim delovima koji se nazivaju zavrtanj (vijak) i navrtka (matica), onda je to posredni čvrst navojni spoj.
Slika 3. Opterećenje zavrtanjske veze
Čvrst navojni spoj koji je ostvaren posredstvom zavrtnja i navrtke zove se zavrtanjska veza. Pored toga što se može razdvojiti, zavrtanjska veza omogućava željeni međusobni položaj spojenih delova i prenošenje opterećenja. Ta opterećenja mogu biti:
u pravcu ose zavrtnja – uzdužno opterećena zavrtanjska veza,
u pravcu upravnom na osu zavrtnja – poprečno opterećena zavrtanjska veza,
pod nekim uglom na uzdužnu osu stabla – složeno (kombinovano) opterećena zavrtanjska veza, kada se opterećenje (sila) razlaže na uzdužnu i poprečnu komponentu, tako da na zavrtanjsku vezu dejstvuje više opterećenja u različitim pravcima.
Stablo zavrtnja se pri uzdužnom (aksijalnom) spoljašnjem opterećenju isteže ili sabija. Ukoliko spoljašnja sila dejstvuje radijalno - upravno/normalno u odnosu na uzdužnu osu (osu uvijanja), tada se javlja naprezanje stabla zavrtnja na smicanje ili savijanje.
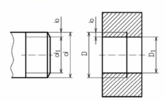
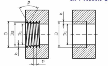
U navojnom spoju razlikujemo sledeće osnovne veličine
Slika 4. Osnovni parametri zavojnice na stablu (a) u rupi (b) i zajedno (c)
Prečnik spoljašnji (d) – najveći prečnik navoja (nominalni prečnik)
Prečnik jezgra (d1) – najmanji prečnik navoja (podnožni prečnik)
Srednji prečnik (d₂) – prečnik na kome širina profila navoja i žleba imaju istu veličinu (srednji prečnik navoja)
Korak (P) – rastojanje između odgovarajućih tačaka susednih navoja, merena paralelno sa osom
Hod (L) – rastojanje koje se pređe duž ose pri jednom potpunom obrtu (kod jednokračnog navoja hod = korak; kod višekračnog – hod = korak × broj krakova)
Ugao profila (β) – ugao između bočnih stranica navoja
Dubina navoja (b) – Razlika nominalnog i podnožnog poluprečnika navoja
Da bi stablo zavrtnja i rupa bili u sklopu (Slika 4 .a i b), dimenzije veličina zavojnice na stablu i u rupi moraju biti iste, sa odgovarajućom tolerancijom mera:
d = D,
d1 = D1 ,
d2 = D2 ,
dubine zavojnica b,
uglovi profila zavojnica β,
i koraci p.
Trougaoni navoj
Metrički (ISO, SRPS M) – ugao profila 60°, dimenzije u milimetrima
Inčni (Whitworth) – ugao profila 55°, dimenzije u inčima
Primena: zavrtnjske veze, pričvršćivanje
Trapezni navoj
Simetrični (ugao profila 30°)
Asimetrični (npr. navoj tipa „Acme“)
Primena: prenos sile kod vretena mašina, presa, šrafova za dizalice
Kvadratni navoj
Velika efikasnost, teže se izrađuje
Primena: prenosi velike sile, precizni mehanizmi
Testerasti navoj
Asimetričan, jedna strana skoro vertikalna
Primena: prenosi silu u jednom pravcu (npr. navijanje poklopaca boca pod pritiskom)
Okrugli navoj
Za česte montaže/demontaže i otpornost na prljavštinu
Primena: spoj vatrogasnih creva, spojne cevi u železnici
Spojni navoj – za zavrtnje, matice, spajanje delova
Pogonski navoj – pretvara obrtno kretanje u pravolinijsko (vretena)
Zaptivni navoj – kod cevi i fitinga, često sa konusnim profilom
Specijalni navoji – za instrumente, sijalice, precizne mehanizme
Desni navoj – standardni, zavija se u smeru kazaljke na satu
Levi navoj – koristi se kad postoji opasnost od samoodvrtanja pri radu